top of page

新着お勧め物件!豊中市永楽荘2丁目戸建

  • maeda340
  • 2021年3月21日
  • 読了時間: 1分

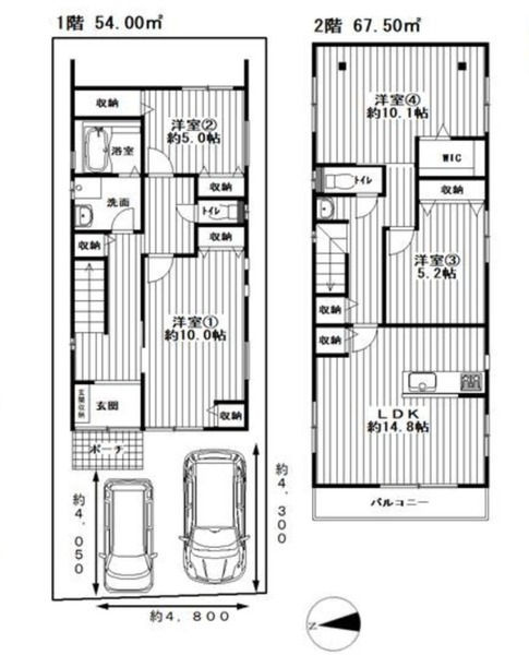
豊中市永楽荘2丁目戸建 3580万円

■2021年3月リフォーム済み

■阪急箕面線「桜井」駅徒歩13分

■土地面積34.17坪

■4LDK

■駐車2台可

物件詳細は下記URLから

不動産の売却もCENTURY21プラッツ不動産販売まで!

 
 
 

コメント


プラッツ不動産販売

大阪府吹田市江坂町1丁目13-41SRビル江坂1階

営業時間:10:00~19:00 

定休日:火曜日、水曜日、年末年始 夏季 GW

大阪府知事(2)第61344号

(一社)大阪府宅地建物取引業協会

(公社)近畿地区不動産公正取引協議会加盟

Copyright© 2021 センチュリー21 プラッツ不動産販売 All Rights reserved.

bottom of page